Copyright www.iexvn.com All Rights Reserved. ©河南贏響力文化傳媒有限公司
豫公網安備41071102000689
|
商家資料
|
產品簡介
單純追求篩分精度會犧牲產量為代價,而追求大產量又會使得精度下降,精制篩分機是針對上述問題而專門設計的一種具有高精度大產量的高效篩分設備,它廣泛應用于化工、冶金、有色金屬、非有色金屬、食品、磨料等行業。
通過精制篩分機將振動器發生振動加搖擺運動,傳至篩面,從而使物料在篩機前部迅速分散,從而達到高效篩分之目的。
工作原理
從篩機搖動體即篩箱運動軌跡來看,精制篩又稱往復篩、方形搖擺篩,其驅動裝置所產生的振動力是一繞定軸、方向呈一定規律變化的慣性力,其本質是由偏心輪繞定軸轉動所形成的往復慣性力。根據搖擺篩的結構特點及工作原理,其篩面一般為水平或微傾斜布置(傾斜角度為0°~5°)。搖擺篩的工作原理為:篩機啟動后,篩機搖動體即篩箱在慣性力的作用下作前后往復運動,篩箱帶動篩面作周期性搖動,從而使篩面上的物料隨篩箱一同作定向跳躍式運動,期間,小于篩面孔徑的物理通過篩孔落到下層,成為篩下物,大于篩面孔徑的物料經連續翻滾跳躍運動后從排料口排出,完成篩分工作。
精制篩分機物料運行示意圖

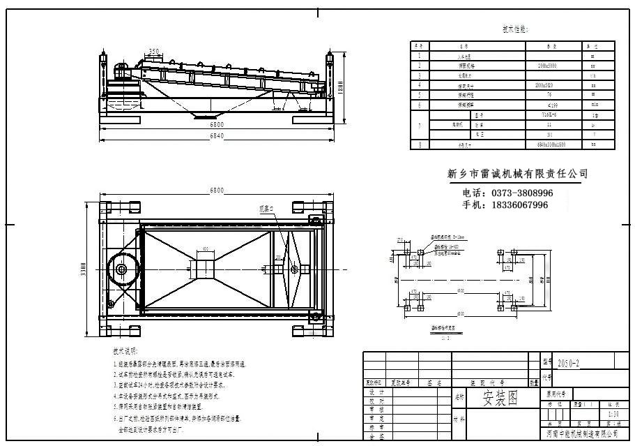
技術參數

RZSJ系列化肥大顆粒尿素回轉分級篩是新鄉雷誠機械有限責任公司吸收國外先進技術研制的高標準精細篩分機械,用于化工大顆粒尿素、飼料廠粉狀物料或顆粒飼料的篩選和分級,也可用于飼料廠原料的初清以及大、中型飼料廠二次粉碎后中間產品的分級。此外,還可廣泛用于糧食、食品、化工、制糖、采礦、造紙等多種行業的原料和成品的篩選與分級。
本系列回轉篩的驅動裝置包括電機和傳動箱,電機通過一級三角帶驅動軸帶動偏心塊旋轉,從而實現篩箱前部的作回轉運動。
RZSJ系列化肥大顆粒尿素回轉分級篩由頂蓋、篩箱和上下篩框及壓緊機構組成。頂蓋為鋼質結構一方面對篩箱起密封作用,另一方面對篩框起壓緊作用,頂蓋上有四個觀察窗,可以觀察物料的運動情況和用來檢修。
篩箱由鋼板鉚合而成,它和頂蓋形成一個封閉的結構,物料在其中得到充分的分級。
本系列由壓緊手柄、壓緊機構座和鎖緊螺母組成。調節螺桿的長度可以調節壓緊力。